Nejlevnější nové byty a rodinné domy v Praze, v Brně a jejich okolí
SLAVÍME 25 LET
NA TRHU BYDLENÍ
257 289 311

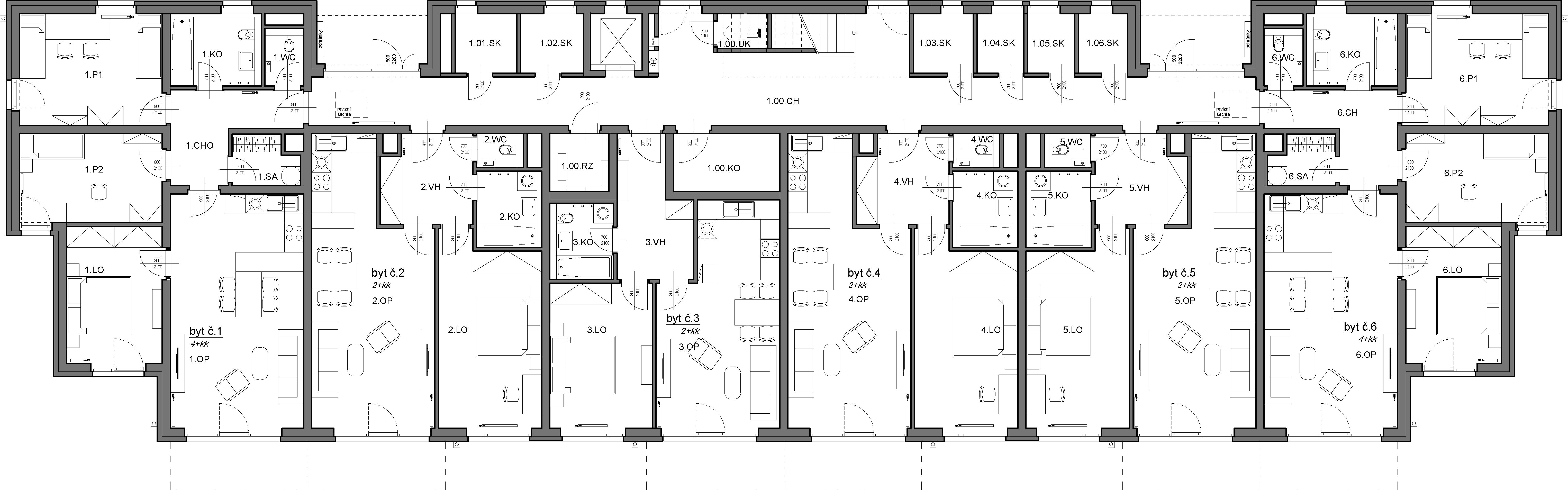
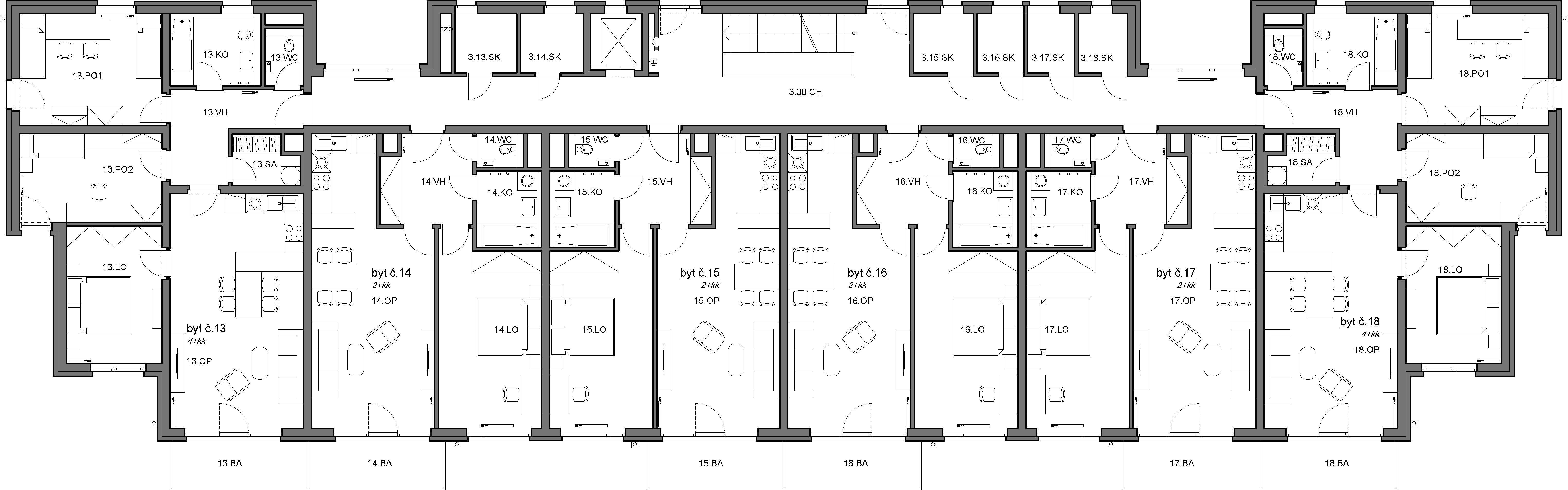
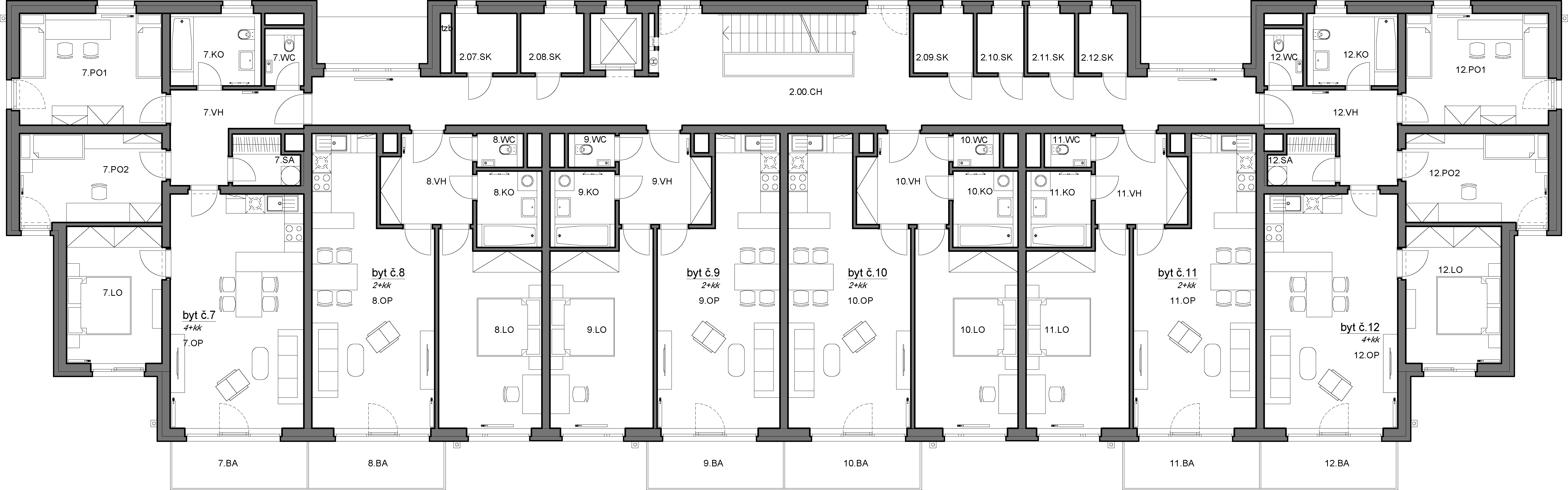
U společnosti BEMETT naleznete širokou nabídku vhodných lokalit pro vaše nové bydlení. Nejlevnější nové byty 1+kk, 2+kk, 3+kk a 4+kk v Praze a okolí stavíme v lokalitách Praha 8 – Bohnice, Unhošť a Chýně u Prahy. Nízkoenergetické řadové rodinné domy 4+kk a 5+kk využívající tepelné čerpadlo zase v lokalitách Rudná u Prahy, Chýně u Prahy a Nučicích u Prahy.

Speciální HYPOTÉKA BEMETT s úrokem 2,99% a fixací 3 roky na všechny naše byty a domy. Vybírat můžete ze široké nabídky níže uvedených novostaveb v Praze a okolí. Tuto akci je možné získat v případě, že využijete financování nového bydlení od našeho partnera, společnosti HypoAsistent.